Vent venligst...  
×

Log ind >
Glemt kodeord? Opret profil
OPRET PROFIL

Hvis du vil tjene penge på at hjælpe andre.


OPRET OPGAVE

Hvis du har en opgave der skal løses.

Handyman.dk Log ind Sign-up
Handyman.dk
Log ind
Sign-up klik her
Du er logget ind som
Login
  • Om Handyman.dk
  • Få 3 tilbud
  • Annoncering
  • Bolig Køberådgivning
  • TØMRER/SNEDKER
    • Montage og nybyg
    • Reparation og vedligehold
    • Alt om køkkenet
    • Om materialer
    • Om værktøj
    • Andet
  • ELEKTRIKER
    • Regler og love
    • Udskiftning og montage
    • Om materialer
    • Tips og tests
  • VVS
    • Montage og udskiftning
    • Reparation og vedligehold
    • Varme og energi
    • Andet
  • MALER
    • Indendørs
    • Udendørs
    • Kan det males?
  • MURER
    • Nybygning
    • Reparationer
    • Om materialer
    • Om værktøj
  • GLARMESTER
    • Udskiftning og montage
    • Om materialer
  • HANDYMAN
    • Tips og tricks
    • Kemi
    • Andet
    • Båd
  • GARTNER
    • Beplantning
    • Belægning
    • Skadedyr
    • Om værktøj
    • Andet
  • RENGØRING
    • Rengøring af overflader
    • Pletleksikon
  1. Hjem
  2. >
  3. Alle Projekter
  4. >
  5. Skillevæg til værelse - og nedrivning/reperation af væg

Skillevæg til værelse - og nedrivning/reperation af væg

1 December 2022
Tømrer/Snedker opgave i København V

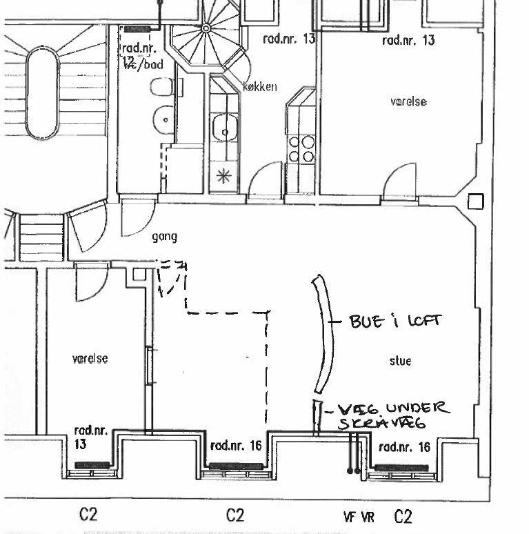
Jeg skal have fjernet lidt rester af en væg - dvs. fjerne bue samt væg under skråvæg og repareret væg, loft og guld, når den er fjernet. Se billeder af bue og væg under skråvæg. Desuden skal jeg have bygget en skillevæg til et værelse. Plantegning viser, hvor den nye væg skal opføres. Det er ca. 6 m skillevæg. Der skal laves en dør ind til værelset. Jeg har en elektriker, der skal lave kontakter i skillevæggen.




Sted
1706 København V
Opgavens omfang
3-4 arbejdsdage
Opstart
Opstart indenfor 8 dage
Pris for kontaktoplysninger
4 credits
Hent kundeoplysninger

Særpriser - Oktober tilbud

(Normalpris DKK 40,- pr. credit.)

Alle priser er inkl. moms og ekskl. Nets transaktionsgebyr.
Købet kan ikke fortrydes.
Credit Cards
Handyhand Logo

Hvad skal du have løst?

Vælg en kategori og du er allerede halvvejs på vej mod at få løst din opgave

Handyman icon

Handyman

Gardening icon

Havearbejde

Carpenter icon

Tømrer

Plumbing icon

VVS

Painter icon

Maler

Waste Collection icon

Storskrald

Electrician icon

Elektriker

IT Support icon

IT Support

Moving Help icon

Flyttehjælp

Furniture Assembly icon

Møbelsamling

Cleaning icon

Rengøring

Window Cleaning icon

Vinduespudsning

Seneste spørgsmål

  • Behandling af massiv egetræs bordplade bad Hvordan behandler jeg en massiv eg bordplade på badeværelset. Der bliver montere...
  • Gamle spånplader Der er sat spånplader på væggerne, vil vil gerne have nyt filt eller tapet ...
  • Hvilken Indvendig dør skal jeg købe?? Jeg skal købe 4 indvendige døre til min lejlighed, men jeg er så i tvivl om...
  • Jordskrue/spyd med flad top til fladt beslag Hej.Jeg skal have opsat en sidemarkise, hvor selve rullen med markisen skal monteres p...

Mest populære artikler

  • Mikrobølgeovnen kan rengøres!
    Mikrobølgeovnen kan rengøres!
  • Sådan bygges en havelåge i træ (gør-det-selv havelåge)
    Sådan bygges en havelåge i træ (gør-det-selv havelåge)
  • Fjern træstub på den nemme måde
    Fjern træstub på den nemme måde
  • Byg selv plankeværket (gør-det-selv plankeværk, trin for trin)
    Byg selv plankeværket (gør-det-selv plankeværk, trin for trin)
Handyman - Test din viden Ved du egentligt hvordan du ...? Gå til test »
HANDYMAN.DK
[email protected]
Persondatapolitik